Villa a schiera di ampie dimensioni disposta su su due piani con autorimessa

In vendita
Bomporto - Via FRANCHINI, 12/B
98.086 €
Villetta schiera
Categoria
185,09
m2
13
Locali
2
Camere
3
Bagni
1
Box
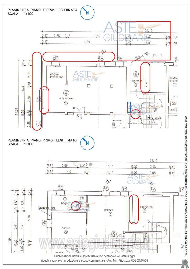
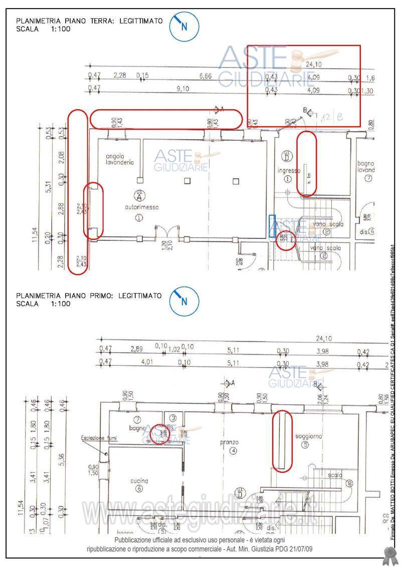
Descrizione
Piena e intera proprietà di villa ubicata nel comune di Bomporto, via Franchini n. 12/b, composta da: garage, lavanderie, ingresso e vano scale al piano terra, zona giorno, cucina, bagno e vano scale al piano primo, una camera da letto matrimoniale, una camera da letto singola, un ripostiglio, un disimpegno ed un bagno al piano secondo.
Contattaci per scoprire come acquistare anche prima dell'asta. Proponiamo il servizio di ASTA TELEMATICA per evitarti di andare in Tribunale, comodamente dal nostro ufficio.
Caratteristiche principali
Codice:
169/2023 U MO
Città:
Bomporto
Categoria:
Villetta schiera
Locali:
13
Camere:
2
Bagni:
3
Mq:
185,09
Box:
1
Mq Box:
55,75
Classe energetica:
Non dichiarata
Mappa
Cookie preference