Villa di ampie dimensioni, disposta su due livelli, in Bomporto

In vendita
Bomporto - Via Franchini, 12/B
98.086 €
Villa
Categoria
210,15
m2
13
Locali
2
Camere
2
Bagni
1
Box
Descrizione
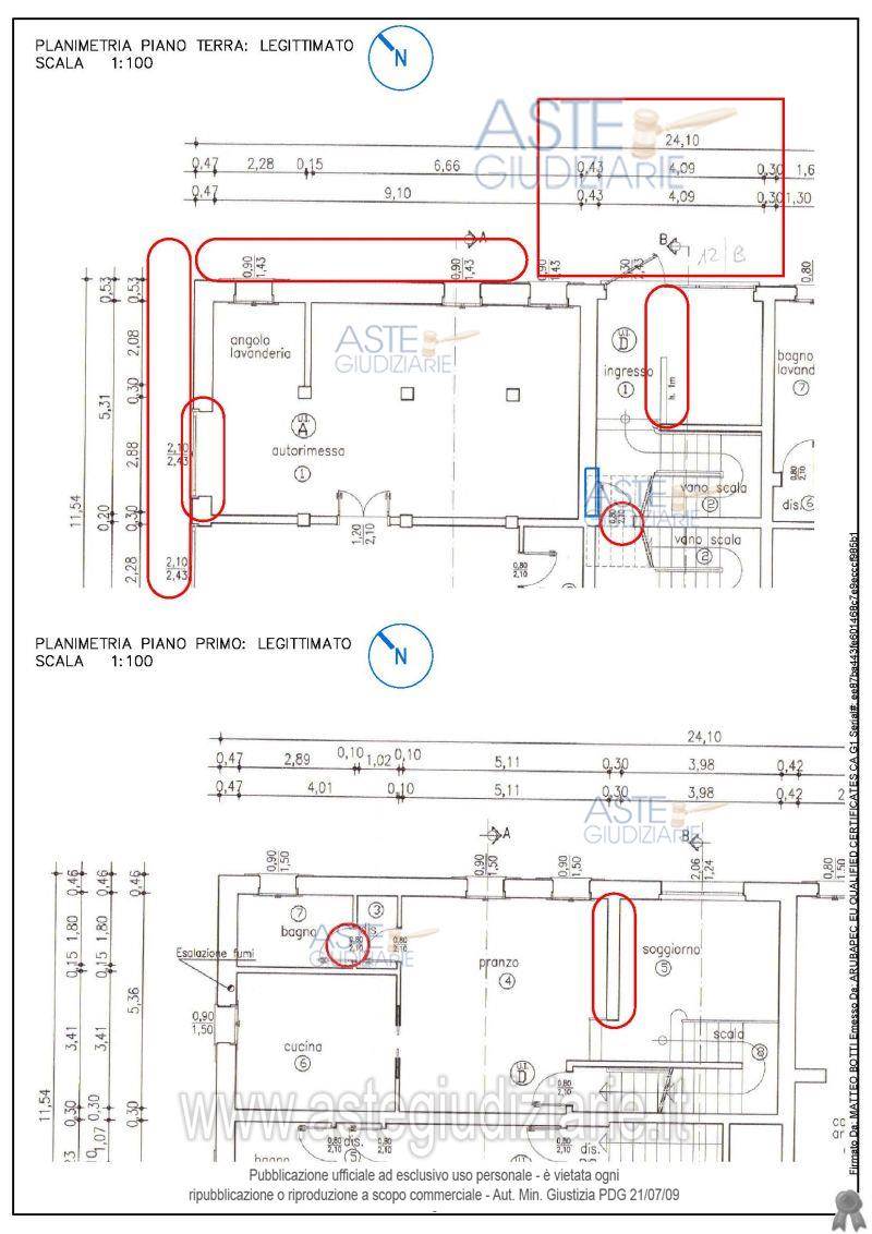
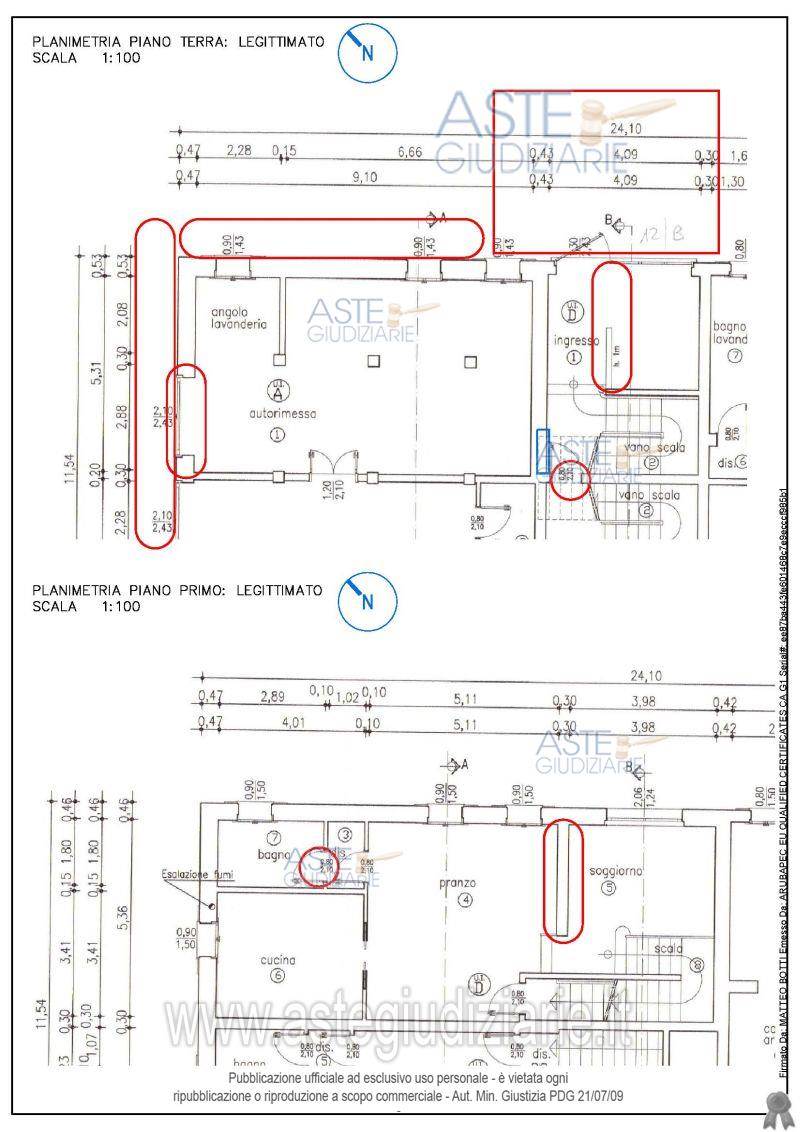
Piena e intera proprietà di villa ubicata nel comune di Bomporto, via Franchini n. 12/b, composta da: garage, lavanderie, ingresso e vano scale al piano terra, zona giorno, cucina, bagno e vano scale al piano primo, una camera da letto matrimoniale, una camera da letto singola, un ripostiglio, un disimpegno ed un bagno al piano secondo.

Contattaci per scoprire come acquistare anche prima dell'asta. Proponiamo il servizio di ASTA TELEMATICA per evitarti di andare in Tribunale, comodamente dal nostro ufficio.
Caratteristiche principali
Codice:
169/2023 MO
Città:
Bomporto
Categoria:
Villa
Locali:
13
Camere:
2
Bagni:
2
Mq:
210,15
Box:
1
Classe energetica:
Non dichiarata
Mappa
Cookie preference